云湖别墅·棕榈滩2期为64栋为托斯卡纳湖岛独栋别墅,面积从460平米-1900平米不等并赠送室内空间300-600平米及300-1000平米四面庭院,配送电梯。全部为地上3层、地下2层(地下1层是地下车位,地下2层是私人仓储为赠送面积)。 项目共建设140栋纯独栋瞰景别墅,分两期开发。首期76栋独栋别墅现已全部 并已入住; 云湖别墅·棕榈滩2期位于顺义区天竺温榆河畔(机场杨林出口出右转1公里),同时,京顺、京承、机场高速、机场二高速等道路也使其具备优异的交通 。项目总用地16.5公顷,总建筑面积7.7万平米,0.39超低容积率,4万平米的私属 公园,8000平米的时光湖,3000多株的名贵成树,生态宜居。
基本信息
规划信息
配套信息
销售信息
优选顾问推荐
17390000元/套
8000000元/套
21360000元/套
9000000元/套
20000000元/套
31000000元/套
12000000元/套
15000000元/套
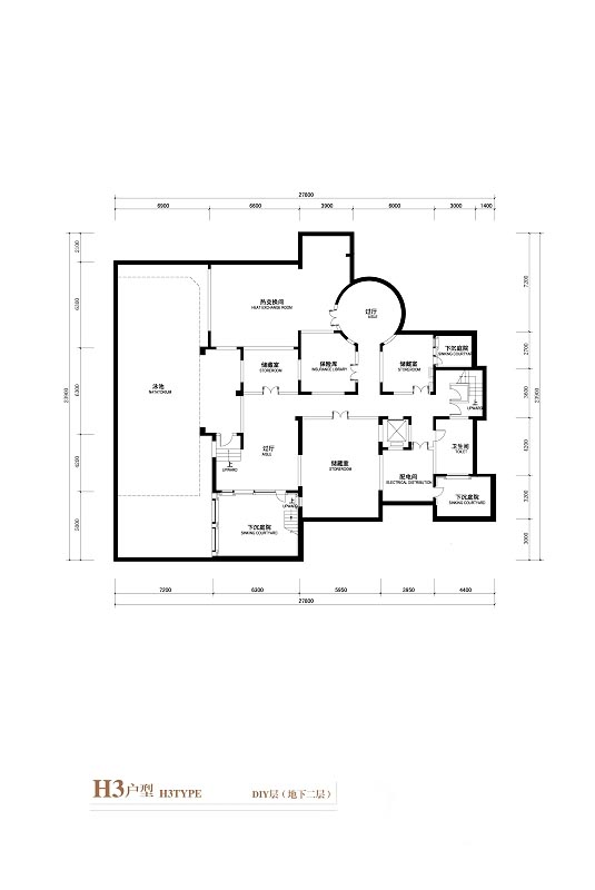
各个空间户型方正,方便室内家具布置;全明通透户型,居住舒适度较高,整个空间采光充足,利于后期居住;整个户型空间布局合理,做到了干湿分离、动静分离,方便后期生活;客厅、卧室、卫生间和厨房等主要功能间的尺寸以及比例适中,有利于采光和通风,居住起来舒适、方便;
各个空间户型方正,方便室内家具布置;全明通透户型,居住舒适度较高,整个空间采光充足,利于后期居住;居室布局合理,通风良好,动静分离,兼顾到了卧室和卫生间的私密性;客厅、卧室、卫生间和厨房等主要功能间的尺寸以及比例适中,有利于采光和通风,居住起来舒适、方便;

楼盘开盘、降价、优惠等信息,将会在第一时间短信通知您!
置业专家将在2小时内与您联系(8点-23点),请保持电话畅通。
请验证手机号验证码完成提交
置业专家将在2小时内与您联系(8点-23点),请保持电话畅通。
如当前手机号遗失,请联系0755-33526610进行人工修改
如当前手机号遗失,请联系0755-33526610进行人工修改
此楼盘如有优惠/变价通知,我们会及时通知您!
138****8965已经申请
137****8955已经申请
157****4365已经申请
183****8115已经申请
187****5968已经申请
159****8233已经申请