香山四季项目位于海淀香山板块、万柳高档生活区与西山别墅带之间,享三大品质居住区的精致生活氛围,同时又占四环、五环交通便利,同时东邻海淀高等院校及机构集聚地。香山四季根植于拥有丰富历史文化沉淀香山脚下,抬头可揽苍翠西山,层峦叠嶂,碧水澄澈,青山秀丽,尽享三山五园贵气,片刻又置身京城各大商圈,如此穿梭于历史与现实之间让居者同时拥有融入社会名流又藏身于山水之间的大隐风范。香山四季不仅具有优越的地理位置更有京城六大高尔夫环绕以及完善的生活 配套。香山四季作为香山板块多年沉淀出的新盘秉承了低密度的水景大宅典范,更打造出非毛坯墅宅。香山四季以三居、四居作为主打户型,全套纯质化品牌非毛坯,地中海建筑风格全石材立面,全程无障碍景观通道直达楼内。
基本信息
规划信息
配套信息
销售信息
优选顾问推荐
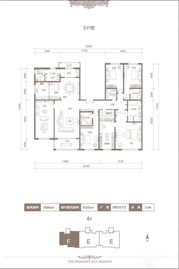
主卧或客厅方正,其他空间不方正;卫生间如没有窗子,可加管道通风,但是相对来说卫生间有窗户是好的情况,利于排湿,不会使湿气进到室内。卧室门朝向客厅或餐厅;次卧的面宽进深比不在标准范围内,要适当缩放家具比例,让空间看起来更开阔;公摊低于15%,属于目前市场中公摊很低的户型。
主卧或客厅方正,其他空间不方正;南北不通透的户型,后期居住时常开门通风换气即可;卧室作为休息区域,门朝向客厅或餐厅时,私密性一般;次卧的面宽进深比不在标准范围内,要适当缩放家具比例,让空间看起来更开阔;公摊小, 。小区公共设施可能不够完善。
次要空间不方正;卫生间没有对外窗户,可通过加装排风机改善通风除湿;卧室门朝向客厅或餐厅;次卧的面宽进深比不在标准范围内,要适当缩放家具比例,让空间看起来更开阔;公摊小, 。小区公共设施可能不够完善。
次要空间不方正;卫生间没有对外窗户,可通过加装排风机改善通风除湿;卧室门朝向客厅或餐厅;次卧的面宽进深比不在标准范围内,装修时的空间改造,可提升对次卧的利用率;公摊小, 。小区公共设施可能不够完善。

楼盘开盘、降价、优惠等信息,将会在第一时间短信通知您!
置业专家将在2小时内与您联系(8点-23点),请保持电话畅通。
请验证手机号验证码完成提交
置业专家将在2小时内与您联系(8点-23点),请保持电话畅通。
如当前手机号遗失,请联系0755-33526610进行人工修改
如当前手机号遗失,请联系0755-33526610进行人工修改
此楼盘如有优惠/变价通知,我们会及时通知您!
138****8965已经申请
137****8955已经申请
157****4365已经申请
183****8115已经申请
187****5968已经申请
159****8233已经申请