五矿万科·如园项目是万科地产携手央企(五矿建设)联袂建设的城市住宅。属于万科成熟产品系列里中式风格的建筑。
基本信息
规划信息
配套信息
销售信息
优选顾问推荐
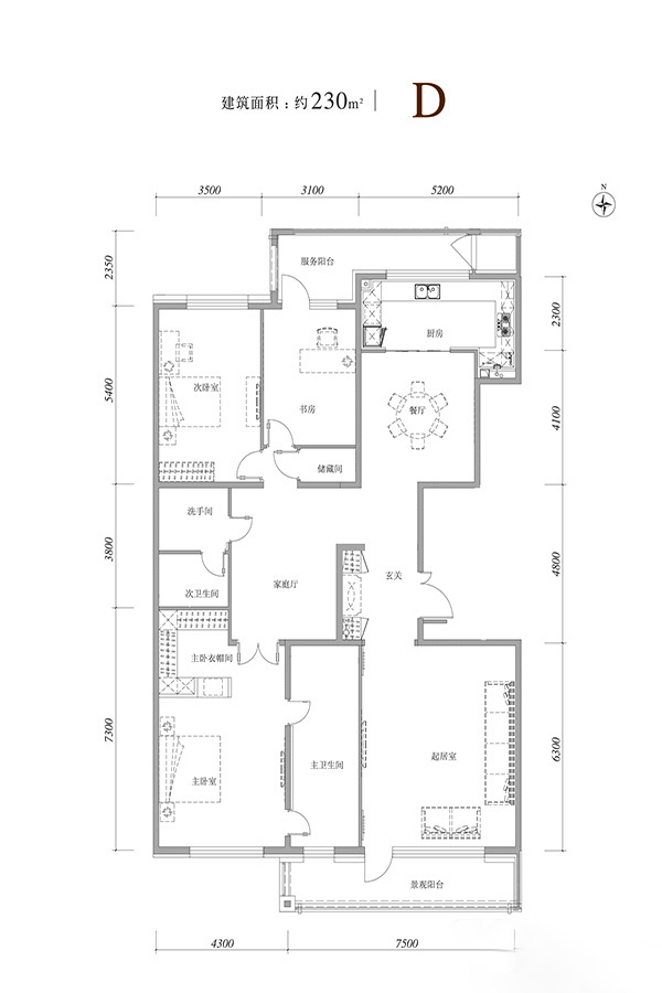
各个空间方正,后期 高。家政房无窗,采光和透气均不好,后期居住舒适度差。整体空间布局合理,能够保证动静分离和居室通风,方便使用;卧室厨卫等各个功能区的面积大小都比较合理,居住体验便利,整体舒适度高;公摊高于15%且低于25%,符合住宅公摊正常范围。
各个空间方正,后期 高。卫生间如没有窗子,可加管道通风,但是相对来说卫生间有窗户是好的情况,利于排湿,不会使湿气进到室内。卫生间门朝向主卧室,舒适度差。各个功能区的尺寸比例规范,布局合理,能很好地满足日常功能需求,整体空间开阔,采光充足,居住舒适度好;公摊高于15%且低于25%,符合住宅公摊正常范围

楼盘开盘、降价、优惠等信息,将会在第一时间短信通知您!
置业专家将在2小时内与您联系(8点-23点),请保持电话畅通。
请验证手机号验证码完成提交
置业专家将在2小时内与您联系(8点-23点),请保持电话畅通。
如当前手机号遗失,请联系0755-33526610进行人工修改
如当前手机号遗失,请联系0755-33526610进行人工修改
此楼盘如有优惠/变价通知,我们会及时通知您!
138****8965已经申请
137****8955已经申请
157****4365已经申请
183****8115已经申请
187****5968已经申请
159****8233已经申请