金地华著项目为金地地产集团开发,距金融街延长线慈献桥500米、距中关村南大街700米。周边环拥金融街商圈、西直门商圈、中关村商圈、万柳商圈。紫竹院和北京动物园近在咫尺。 金地华著建筑、景观及室内非毛坯设计均由团队打造。建筑择选欧标建筑标准,精心构筑东方诗意画居。景观设计与建筑风格相呼应,融入新东方元素。室内采用 “五恒”新风系统、全智能人性化系统设定。在服务模式上,采用一对一定制管家服务,华人居所。
基本信息
规划信息
配套信息
销售信息
优选顾问推荐
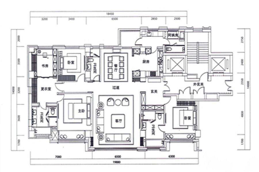
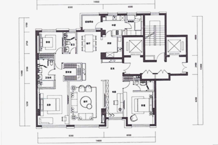
各个空间户型方正,方便室内家具布置;卫生间没有对外窗户,可通过加装排风机改善通风除湿;居室布局合理,通风良好,动静分离,兼顾到了卧室和卫生间的私密性;卧室厨卫等各个功能区的面积大小都比较合理,居住体验便利,整体舒适度高;公摊高于15%且低于25%,符合住宅公摊正常范围。
各个空间户型方正,方便室内家具布置;卫生间没有对外窗户,可通过加装排风机改善通风除湿;整个户型空间布局合理,做到了干湿分离、动静分离,方便后期生活;客厅、卧室、卫生间和厨房等主要功能间的尺寸以及比例适中,有利于采光和通风,居住起来舒适、方便;公摊高于15%且低于25%,符合住宅公摊正常范围。
各个空间户型方正,方便室内家具布置;卫生间没有对外窗户;居室布局合理,通风良好,动静分离,兼顾到了卧室和卫生间的私密性;各个功能区的尺寸比例规范,布局合理,能很好地满足日常功能需求,整体空间开阔,采光充足,居住舒适度好;公摊高于15%且低于25%,符合住宅公摊正常范围。

楼盘开盘、降价、优惠等信息,将会在第一时间短信通知您!
置业专家将在2小时内与您联系(8点-23点),请保持电话畅通。
请验证手机号验证码完成提交
置业专家将在2小时内与您联系(8点-23点),请保持电话畅通。
如当前手机号遗失,请联系0755-33526610进行人工修改
如当前手机号遗失,请联系0755-33526610进行人工修改
此楼盘如有优惠/变价通知,我们会及时通知您!
138****8965已经申请
137****8955已经申请
157****4365已经申请
183****8115已经申请
187****5968已经申请
159****8233已经申请