首开龙湖天琅,北京龙湖进驻南城打造的样板别墅项目,位于南五环瀛海城市公园板块。项目依靠南海子公园、南中轴森林公园等丰沛自然生态;同时坐享密集式交通路网,“大亦庄”开发区,享丰富商圈配套。 天琅,依靠南海子公园、南中轴森林公园等丰沛自然生态,及龙湖一贯对生活的考究宗旨,打造“懂”生活的新中式风格别墅,敬献南城。用精致的构思,精巧的布局,精良的选材辅以龙湖熟稔的园林造诣,造一所园子去生活。
基本信息
规划信息
配套信息
销售信息
优选顾问推荐
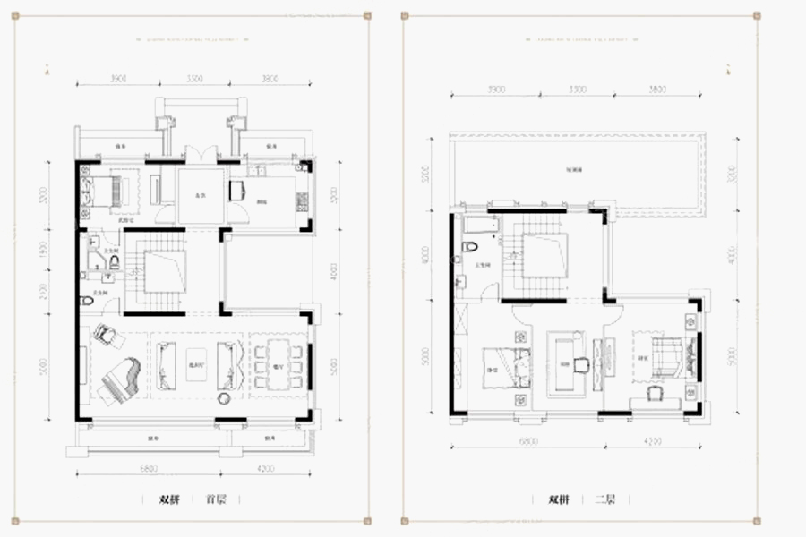
各个空间户型方正,方便室内家具布置;整个空间全明通透,采光良好,同时利于居住空间通风;整体空间布局合理,能够保证动静分离和居室通风,方便使用;各个功能区的尺寸比例规范,布局合理,能很好地满足日常功能需求,整体空间开阔,采光充足,居住舒适度好;公摊小,得房率较高。
【采光】270度三面采光,南向面宽10米,落地窗设计,保证日间有更多的自然光进入。 【布局】客厅和餐厅贯穿南北,使室内视野更开阔。开窗时,可在房屋中间形成穿堂风;主卧包含书房、步入式衣帽间、卫生间,居住私密性能够得到保证。 【分间】厨房能布置单侧操作台,便于烹饪器具摆放;主卧卫生间双面盆设计,可
各个空间户型方正,方便室内家具布置;全明户型,各部分空间均有窗,可保证整体空间采光和通风,居住舒适度好;居室布局合理,通风良好,动静分离,兼顾到了卧室和卫生间的私密性;各个功能区的尺寸比例规范,布局合理,能很好地满足日常功能需求,整体空间开阔,采光充足,居住舒适度好;公摊低于15%,属于目前市场中公
各个空间户型方正,后期空间利用率高;整个空间全明通透,采光良好,同时利于居住空间通风;整个户型空间布局合理,做到了干湿分离、动静分离,方便后期生活;各个功能区的尺寸比例规范,布局合理,能很好地满足日常功能需求,整体空间开阔,采光充足,居住舒适度好;公摊低于15%,得房率较高。

楼盘开盘、降价、优惠等信息,将会在第一时间短信通知您!
置业专家将在2小时内与您联系(8点-23点),请保持电话畅通。
请验证手机号验证码完成提交
置业专家将在2小时内与您联系(8点-23点),请保持电话畅通。
如当前手机号遗失,请联系0755-33526610进行人工修改
如当前手机号遗失,请联系0755-33526610进行人工修改
此楼盘如有优惠/变价通知,我们会及时通知您!
138****8965已经申请
137****8955已经申请
157****4365已经申请
183****8115已经申请
187****5968已经申请
159****8233已经申请