北辰·墅院1900项目采用麻石材,辅以手工干挂工艺,精琢一席纯正北美生活区;专梯专户,11米大面宽,方正户型,南北通透,社区引入资源,更拥有双庭园景观,私享城市公园秘境般的居住环境。
基本信息
规划信息
配套信息
销售信息
优选顾问推荐
100000000元/套
17390000元/套
8000000元/套
21360000元/套
9000000元/套
20000000元/套
12000000元/套
15000000元/套
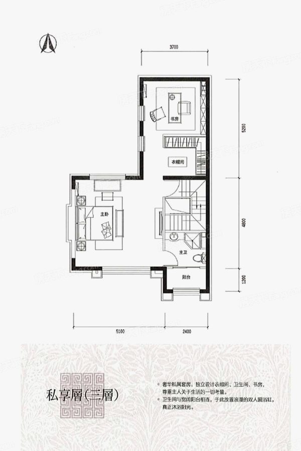
整体户型方正,活动区域开阔,居住舒适度高;整个空间全明通透,采光良好,同时利于居住空间通风;卧室位置合理,能够保证足够安静,客厅的声音不会影响卧室的休息;卫生间位置合理,使用起来动线比较合理。各个功能区的尺寸比例规范,布局合理,能很好地满足日常功能需求,整体空间开阔,采光充足,居住舒适度好;公摊高于
各个空间方正,后期 高。卫生间如没有窗子,可加管道通风,但是相对来说卫生间有窗户是好的情况,利于排湿,不会使湿气进到室内。入户门进厨房需要穿过客厅;卧室厨卫等各个功能区的面积大小都比较合理,居住体验便利,整体舒适度高;
整体户型方正,活动区域开阔,居住舒适度高;卫生间没有对外窗户;比较重要的空间无对外窗户;整个户型空间布局合理,做到了干湿分离、动静分离,方便后期生活;各个功能区的尺寸比例规范,布局合理,能很好地满足日常功能需求,整体空间开阔,采光充足,居住舒适度好;公摊高于15%且低于25%,符合住宅公摊正常范围。

楼盘开盘、降价、优惠等信息,将会在第一时间短信通知您!
置业专家将在2小时内与您联系(8点-23点),请保持电话畅通。
请验证手机号验证码完成提交
置业专家将在2小时内与您联系(8点-23点),请保持电话畅通。
如当前手机号遗失,请联系0755-33526610进行人工修改
如当前手机号遗失,请联系0755-33526610进行人工修改
此楼盘如有优惠/变价通知,我们会及时通知您!
138****8965已经申请
137****8955已经申请
157****4365已经申请
183****8115已经申请
187****5968已经申请
159****8233已经申请