紫阙·天禄(盛德紫阙)项目位于北京市东城区地坛公园北,北二环安定门向北1000米。项目交通便利,立体交通出行生活。 紫阙R26;天禄(盛德紫阙)项目周边三大公园环绕,南部地坛公园:起源于明朝,公园面积40万平米,园中100余种世界珍奇树种,300多年古树参天,历史人文气韵满园;西南部青年湖公园,紫禁城17万平米的人文公园,各项水上娱乐休闲活动:游泳、水滑梯、健身球等,园内拥有高尔夫球练习场,是全家人享受生活、亲近自然的去处;西部柳荫公园,是一处山野田园风趣的城市绿地,园内上千株30余种柳树品种,同样是柳树的博物馆,春絮如雪、夏荫斑驳、秋叶妖娆、冬芽娇俏。 紫阙R26;天禄(盛德紫阙)项目,传承中国故事,习中华传统文化精髓,在历史文化浓郁的东城区打造具有中华气韵的人文居所;建筑立面撷取代表建筑传承风范的ARTDECO建筑风格,无限向上的竖向线条,衬托建筑的挺拔俊俏,顶部造型柔化又突出线条感,刚毅而不失优美;项目外立面通体进口石材干挂,历久弥新历史感十足的进口石材,具有质感的粒石表面,四季变幻,讲述着光影里的古老故事。 项目共三栋板式高层,户型面积60-420㎡(建筑面积)舒适住家空间,729-792㎡(建筑面积)瞰景大宅,顶层1000-1200㎡(建筑面积)空中院墅,跃层空间,空中露台花园,4层近2500㎡东南亚空中花园。项目2200平米私人会所:涵盖私人会客厅、康体SPA、茶道、香道、私人厨房、红酒、咖啡音乐吧、多功能展卖等多样化尊贵体验。
基本信息
规划信息
配套信息
销售信息
优选顾问推荐
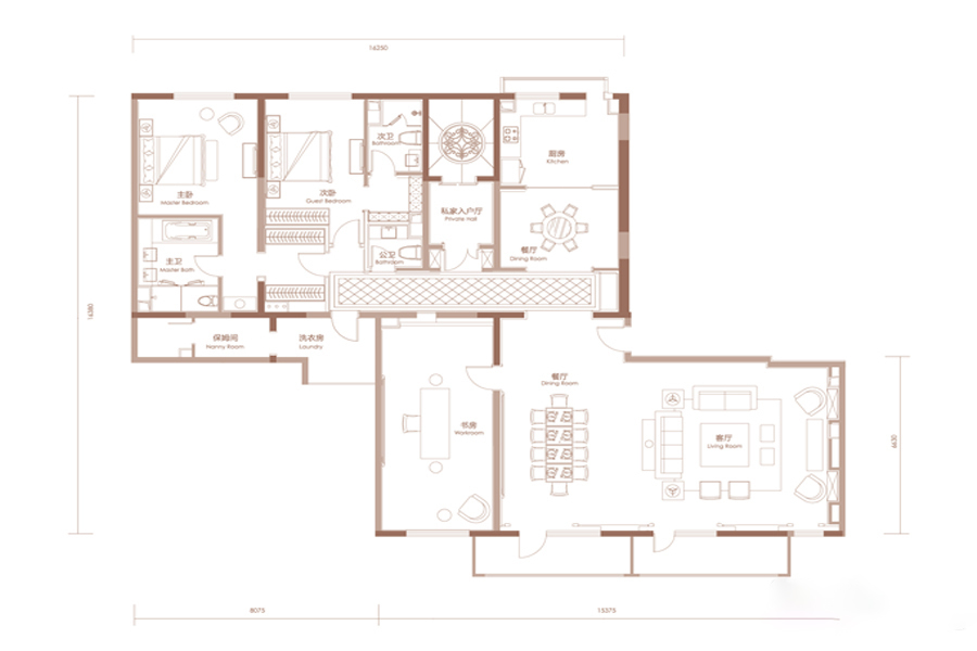
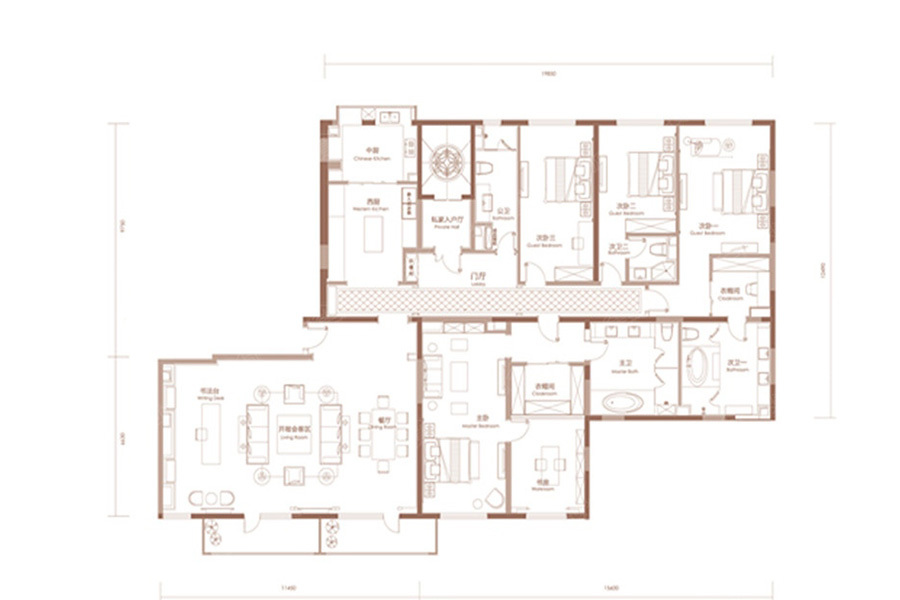
各个空间方正,后期 高。全明通透户型,居住舒适度较高,整个空间采光充足,利于后期居住;居室布局合理,通风良好,动静分离,兼顾到了卧室和卫生间的私密性;各个功能区的尺寸比例规范,布局合理,能很好地满足日常功能需求,整体空间开阔,采光充足,居住舒适度好;
各个空间方正,后期 高。卫生间如没有窗子,可加管道通风,但是相对来说卫生间有窗户是好的情况,利于排湿,不会使湿气进到室内。比较重要的空间无对外窗户;整个户型空间布局合理,做到了干湿分离、动静分离,方便后期生活;客厅、卧室、卫生间和厨房等主要功能间的尺寸以及比例适中,有利于采光和通风,居住起来舒适、方
各个空间户型方正,方便室内家具布置;比较重要的空间无对外窗户;整体空间布局合理,能够保证动静分离和居室通风,方便使用;客厅、卧室、卫生间和厨房等主要功能间的尺寸以及比例适中,有利于采光和通风,居住起来舒适、方便;
各个空间户型方正,方便室内家具布置;卫生间如没有窗子,可加管道通风,但是相对来说卫生间有窗户是好的情况,利于排湿,不会使湿气进到室内。比较重要的空间无对外窗户,室内采光和通风欠佳;整个户型空间布局合理,做到了干湿分离、动静分离,方便后期生活;卧室厨卫等各个功能区的面积大小都比较合理,居住体验便利,整

楼盘开盘、降价、优惠等信息,将会在第一时间短信通知您!
置业专家将在2小时内与您联系(8点-23点),请保持电话畅通。
请验证手机号验证码完成提交
置业专家将在2小时内与您联系(8点-23点),请保持电话畅通。
如当前手机号遗失,请联系0755-33526610进行人工修改
如当前手机号遗失,请联系0755-33526610进行人工修改
此楼盘如有优惠/变价通知,我们会及时通知您!
138****8965已经申请
137****8955已经申请
157****4365已经申请
183****8115已经申请
187****5968已经申请
159****8233已经申请