中粮·京西祥云项目总占地面积6.8万平米,建筑面积16.38万平米。 项目内将导入中粮大悦城资源,打造一所创意的新概念商业配套——移动大悦城。它由日常生活服务类(如亲子服务、咖啡书吧等)的固定业态及休闲体验类(如创意集市、超级单品店等)灵活业态组成,业主将在家的1公里半径内,体验当下流行的风尚。 中粮·京西祥云邀JWDA担纲整体的建筑设计,建筑风格为时尚大气的现代风格,以简洁的造型和线条塑造鲜明的社区表情,彰显都市感和现代感。在整体布局上,遵照均好原则及共享原则, 化的保证了社区高品质景观空间,保证每一户的均衡日照,同时也能均享社区资源。采用人车分流,在园林景观方面,采用内外园林结合的设计满足业主的多种需求。
基本信息
规划信息
配套信息
销售信息
优选顾问推荐
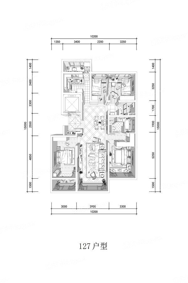
户型方正,南北通透,明厨明卫,功能齐全 卧室:主次卧南北通透,两卧朝南,南北通透,便于通风采光 客厅:客厅、餐厅一体化设计,最大限度利用空间 卫生间:明卫设计,保证空气洁净
各个空间户型方正,方便室内家具布置;全明户型,各部分空间均有窗,可保证整体空间采光和通风,居住舒适度好;卧室门朝向客厅或餐厅;厨房门朝向客厅,能加装门即可规避油烟对客厅的影响;客厅、卧室、卫生间和厨房等主要功能间的尺寸以及比例适中,有利于采光和通风,居住起来舒适、方便;公摊高于15%且低于25%,符
各个空间户型方正,方便室内家具布置;整个空间全明通透,采光良好,同时利于居住空间通风;厨房门朝向客厅,装修时要侧重考虑除油烟的措施;各个功能区的尺寸比例规范,布局合理,能很好地满足日常功能需求,整体空间开阔,采光充足,居住舒适度好;公摊高于15%且低于25%,符合住宅公摊正常范围。

楼盘开盘、降价、优惠等信息,将会在第一时间短信通知您!
置业专家将在2小时内与您联系(8点-23点),请保持电话畅通。
请验证手机号验证码完成提交
置业专家将在2小时内与您联系(8点-23点),请保持电话畅通。
如当前手机号遗失,请联系0755-33526610进行人工修改
如当前手机号遗失,请联系0755-33526610进行人工修改
此楼盘如有优惠/变价通知,我们会及时通知您!
138****8965已经申请
137****8955已经申请
157****4365已经申请
183****8115已经申请
187****5968已经申请
159****8233已经申请