北京
搜索 地图找房

世联集北京 > 在线找房 > 楼盘 > 水墨林溪

楼盘信息 楼盘动态 主力户型 楼盘详情 周边配套 优选顾问
0>

优选顾问推荐

马小良 金牌顾问
4006065988 转 126337
免责声明:本站楼盘信息旨在为用户提供更多信息的无偿服务,信息以政府部分登记备案为准。
  • 户型名称:C13户型-4室2厅2卫1厨建筑面积173.00平米
  • 参考均价:均价待定
  • 户型:4室2厅1厨2卫
  • 参考总价:总价待定
  • 装修情况:暂无
  • 梯户情况:暂无
  • 建筑面积:173 m²
  • 赠送面积:暂无
  • 户型余量:未知
  •  
  • 户型品鉴:
    									整体户型方正,活动区域开阔,居住舒适度高;全明通透户型,居住舒适度较高,整个空间采光充足,利于后期居住;整个户型空间布局合理,做到了干湿分离、动静分离,方便后期生活;卧室厨卫等各个功能区的面积大小都比较合理,居住体验便利,整体舒适度高;
    								
  • 户型名称:B8户型-2室2厅1卫1厨建筑面积88.38平米
  • 参考均价:13500 元/m²
  • 户型:2室2厅1厨1卫
  • 参考总价:119.31 万
  • 装修情况:暂无
  • 梯户情况:暂无
  • 建筑面积:88.38 m²
  • 赠送面积:暂无
  • 户型余量:未知
  •  
  • 户型品鉴:
    									各个空间户型方正,方便室内家具布置;全明户型,各部分空间均有窗,可保证整体空间采光和通风,居住舒适度好;整体空间布局合理,能够保证动静分离和居室通风,方便使用;卧室厨卫等各个功能区的面积大小都比较合理,居住体验便利,整体舒适度高;
    								
  • 户型名称:C1-2a户型-4室3厅3卫1厨建筑面积197.55平米
  • 参考均价:均价待定
  • 户型:4室3厅1厨3卫
  • 参考总价:总价待定
  • 装修情况:暂无
  • 梯户情况:暂无
  • 建筑面积:197.55 m²
  • 赠送面积:暂无
  • 户型余量:未知
  •  
  • 户型品鉴:
    									整体户型方正,活动区域开阔,居住舒适度高;整个空间全明通透,采光良好,同时利于居住空间通风;整体空间布局合理,能够保证动静分离和居室通风,方便使用;客厅、卧室、卫生间和厨房等主要功能间的尺寸以及比例适中,有利于采光和通风,居住起来舒适、方便;
    								
  • 户型名称:B13-07户型-2室1厅1卫1厨建筑面积107.00平米
  • 参考均价:均价待定
  • 户型:2室1厅1厨1卫
  • 参考总价:总价待定
  • 装修情况:暂无
  • 梯户情况:暂无
  • 建筑面积:107 m²
  • 赠送面积:暂无
  • 户型余量:未知
  •  
  • 户型品鉴:
    									各个空间方正,后期 高。整个空间全明通透,采光良好,同时利于居住空间通风;整个户型空间布局合理,做到了干湿分离、动静分离,方便后期生活;各个功能区的尺寸比例规范,布局合理,能很好地满足日常功能需求,整体空间开阔,采光充足,居住舒适度好;
    								
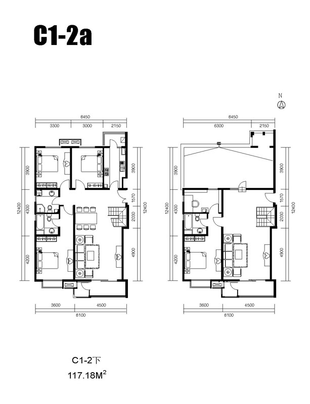
  • 户型名称:C1户型-3室2厅2卫1厨建筑面积117.18平米
  • 参考均价:均价待定
  • 户型:3室2厅1厨2卫
  • 参考总价:总价待定
  • 装修情况:暂无
  • 梯户情况:暂无
  • 建筑面积:117.18 m²
  • 赠送面积:暂无
  • 户型余量:未知
  •  
  • 户型品鉴:
    									各个空间户型方正,方便室内家具布置;全明户型,各部分空间均有窗,可保证整体空间采光和通风,居住舒适度好;居室布局合理,通风良好,动静分离,兼顾到了卧室和卫生间的私密性;
    								
  • 户型名称:C2-1户型-5室3厅2卫1厨建筑面积195.44平米
  • 参考均价:均价待定
  • 户型:5室3厅1厨2卫
  • 参考总价:总价待定
  • 装修情况:暂无
  • 梯户情况:暂无
  • 建筑面积:195.44 m²
  • 赠送面积:暂无
  • 户型余量:未知
  •  
  • 户型品鉴:
    									各个空间户型方正,方便室内家具布置;全明通透户型,居住舒适度较高,整个空间采光充足,利于后期居住;整体空间布局合理,能够保证动静分离和居室通风,方便使用;卧室厨卫等各个功能区的面积大小都比较合理,居住体验便利,整体舒适度高;
    								
  • 户型名称:C1-2户型-4室3厅3卫1厨建筑面积193.30平米
  • 参考均价:均价待定
  • 户型:4室3厅1厨3卫
  • 参考总价:总价待定
  • 装修情况:暂无
  • 梯户情况:暂无
  • 建筑面积:193.3 m²
  • 赠送面积:暂无
  • 户型余量:未知
  •  
  • 户型品鉴:
    									各个空间方正,后期 高。全明户型,各部分空间均有窗,可保证整体空间采光和通风,居住舒适度好;整体空间布局合理,能够保证动静分离和居室通风,方便使用;
    								
  • 户型名称:B13-03户型-3室1厅1卫1厨建筑面积145.00平米
  • 参考均价:均价待定
  • 户型:3室1厅1厨1卫
  • 参考总价:总价待定
  • 装修情况:暂无
  • 梯户情况:暂无
  • 建筑面积:145 m²
  • 赠送面积:暂无
  • 户型余量:未知
  •  
  • 户型品鉴:
    									各个空间方正,后期 高。全明户型,各部分空间均有窗,可保证整体空间采光和通风,居住舒适度好;整体空间布局合理,能够保证动静分离和居室通风,方便使用;卧室厨卫等各个功能区的面积大小都比较合理,居住体验便利,整体舒适度高;
    								
水墨林溪

恭喜你,优惠券领取成功

优惠券:

使用规则:

使用范围:

有效期限:

返现券已放入个人中心我的优惠券

分享优惠券获得更多优惠
微信扫码进入世联集小程序,
查看更多优惠活动
优惠券详细规则说明

开盘、降价、优惠通知

楼盘开盘、降价、优惠等信息,将会在第一时间短信通知您!

恭喜您,订阅成功!

我知道了

请不要重复订阅!

我知道了

亲,您已达到该优惠券领取最大限量
领取失败了呦!

分享优惠券获得更多优惠
微信扫码进入世联集小程序,
查看更多优惠活动

对不起,优惠券已过期
领取失败了呦!

分享优惠券获得更多优惠
微信扫码进入世联集小程序,
查看更多优惠活动

亲,您来晚了一步,优惠券被抢完咯!

分享优惠券获得更多优惠
微信扫码进入世联集小程序,
查看更多优惠活动

注册 |登录

完善个人信息

登录 |注册 快捷登录 密码登录

  •  获取验证码
    ×
    •  换一张

找回密码 登录 注册

  •  获取验证码
    ×
    •  换一张

如有问题,可联系客服:0755-33526610

如有问题,可联系客服:0755-33526610

一键预约

  •  获取验证码

置业专家将在2小时内与您联系(8点-23点),请保持电话畅通。

验证提交

一键预约

置业专家将在2小时内与您联系(8点-23点),请保持电话畅通。

修改手机号

  •  获取验证码
    ×
    •  换一张

如当前手机号遗失,请联系0755-33526610进行人工修改

  •  获取验证码
    ×
    •  换一张

如当前手机号遗失,请联系0755-33526610进行人工修改

优惠通知

此楼盘如有优惠/变价通知,我们会及时通知您!

  •  获取验证码
    ×
    •  换一张

北京买房交流群(

138****8965已经申请

137****8955已经申请

157****4365已经申请

183****8115已经申请

187****5968已经申请

159****8233已经申请

申请入群

  •  获取验证码
    ×
    •  换一张