首开·琅樾项目位于北京朝阳区孙河别墅区,该板块是距离城市核心区域较近的一片低密住宅用地。该地块为先规划再开发的大面积别墅用地,周边配套齐全。 项目 京承、京平、机场高速三条核心高速路。另有顺白路、顺黄路纵贯其中, 15号线孙河站,形成“双横四纵一轨道”的立体通达交通网;依据此交通 ,可便捷直达国贸,燕莎,望京,丽都等城市核心商圈及首都机场。 首开·琅樾项目东侧毗邻温榆河沿河生态走廊和天然湿地,且私享7万平米生态公园景观,兼备得天独厚的自然环境,成就孙河之心,使项目成为东北五环后的珍藏公园宅邸,是宜居的城市公园别墅。 首开·琅樾项目周边聚集7大高尔夫俱乐部、6家马术俱乐部、14所国际 ,占北京国际 数量的70%,以及地坛医院、首都机场医院、中日友好医院、和睦家等多家医疗资源等丰沛城市配套资源,是孙河别墅区内的成熟,理想的别墅居住区。 首开·琅樾作为首开“樾系”开山之笔,有类独栋、叠拼、平墅三种产品。类独栋主力产品是地上3层地下2层的新法式院落别墅产品;建筑于端庄高雅的法式形制之上,辅以中式元素,西方形制东方神韵的融合浑然一体,自然天成,带给人一种豪华舒适的空间感受。礼制园林,多轮考究,论证望族需求,形成法式园林精神与中式园林真意融汇。 首开·琅樾只为更好满足城市新兴财富 对于更高层次墅级生活的至美居住需求及家传向往。必定在北京后的低密版图之上,书写浓墨重彩的一笔,礼献城市 人士。
基本信息
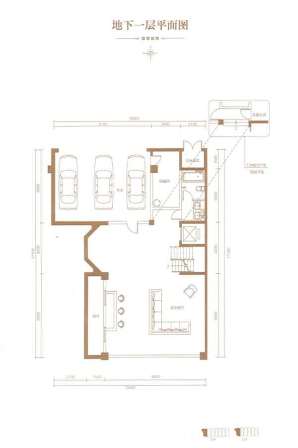
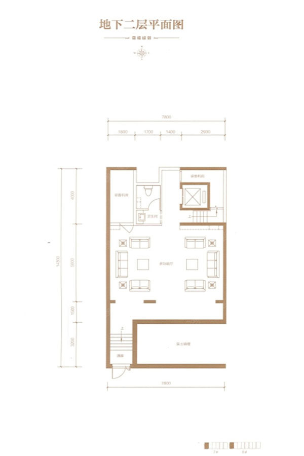
规划信息
配套信息
销售信息
优选顾问推荐
无窗类空间略显憋闷,当然此类 不可能是卧室,一般是衣帽间之类,倒也无所谓。卫生间门朝向主要活动区域,私密性一般;
除主卧和客厅之外的其他空间不方正;无窗类空间略显憋闷,当然此类 不可能是卧室,一般是衣帽间之类,倒也无所谓。卧室门朝向客厅或餐厅;
次要空间不方正;比较重要的空间无对外窗户,室内采光和通风欠佳;

楼盘开盘、降价、优惠等信息,将会在第一时间短信通知您!
置业专家将在2小时内与您联系(8点-23点),请保持电话畅通。
请验证手机号验证码完成提交
置业专家将在2小时内与您联系(8点-23点),请保持电话畅通。
如当前手机号遗失,请联系0755-33526610进行人工修改
如当前手机号遗失,请联系0755-33526610进行人工修改
此楼盘如有优惠/变价通知,我们会及时通知您!
138****8965已经申请
137****8955已经申请
157****4365已经申请
183****8115已经申请
187****5968已经申请
159****8233已经申请