京投万科新里程由京投银泰及万科集团强强联手,打造京西南宜居新典范,项目位于房山区良乡大学城东侧,良乡东路以北,从京石高速西三环六里桥到京良路出口18公里。 户型: 一期为约89平米两居、约90平米三居,首期毛坯交房,后期为非毛坯交房;二期为约83平米两居、约102平米与108平米三居,为非毛坯交房。 交通情况:距良乡大学城北站仅400米,可与9号线实现便捷换乘。京石高速、京石第二高速及京开高速等多条高速连接城区,京良路、长虹路、长于路等城市主干道贯穿区域。立体交错的城市交通网络环绕京投万科新里程项目,提供便捷的交通; 教育资源:项目西侧为良乡大学城,聚集高素质、高学历的社会精英, 气息浓郁,文化底蕴深厚。人才的聚集带动新兴产业发展。 商业配套:京投万科新里程项目距良乡成熟商圈仅3000米,奥特莱斯华北旗舰店入驻长阳,可以满足不同人群需求,提供娱乐、休闲、购物、商务等 服务。 自建:另外,京投万科新里程项目还自建商业、幼儿园等配套设施,满足业主日常生活需求。
基本信息
规划信息
配套信息
销售信息
优选顾问推荐
暂无
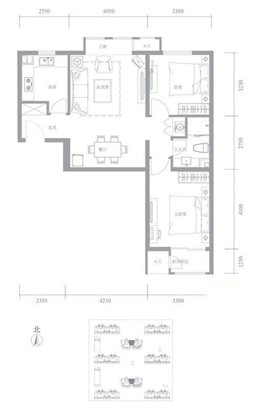
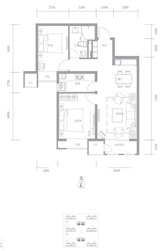
各个空间方正,后期 高。全明户型,各部分空间均有窗,可保证整体空间采光和通风,居住舒适度好;居室布局合理,通风良好,动静分离,兼顾到了卧室和卫生间的私密性;卧室厨卫等各个功能区的面积大小都比较合理,居住体验便利,整体舒适度高;公摊高于15%且低于25%,符合住宅公摊正常范围。
各个空间方正,后期 高。全明户型,各部分空间均有窗,可保证整体空间采光和通风,居住舒适度好;整个户型空间布局合理,做到了干湿分离、动静分离,方便后期生活;客厅、卧室、卫生间和厨房等主要功能间的尺寸以及比例适中,有利于采光和通风,居住起来舒适、方便;公摊高于15%且低于25%,符合住宅公摊正常范围。
各个空间方正,后期 高。全明通透户型,居住舒适度较高,整个空间采光充足,利于后期居住;整体空间布局合理,能够保证动静分离和居室通风,方便使用;各个功能区的尺寸比例规范,布局合理,能很好地满足日常功能需求,整体空间开阔,采光充足,居住舒适度好;公摊高于15%且低于25%,符合住宅公摊正常范围。
各个空间户型方正,方便室内家具布置;整个空间全明通透,采光良好,同时利于居住空间通风;居室布局合理,通风良好,动静分离,兼顾到了卧室和卫生间的私密性;卧室厨卫等各个功能区的面积大小都比较合理,居住体验便利,整体舒适度高;公摊高于15%且低于25%,符合住宅公摊正常范围。

楼盘开盘、降价、优惠等信息,将会在第一时间短信通知您!
置业专家将在2小时内与您联系(8点-23点),请保持电话畅通。
请验证手机号验证码完成提交
置业专家将在2小时内与您联系(8点-23点),请保持电话畅通。
如当前手机号遗失,请联系0755-33526610进行人工修改
如当前手机号遗失,请联系0755-33526610进行人工修改
此楼盘如有优惠/变价通知,我们会及时通知您!
138****8965已经申请
137****8955已经申请
157****4365已经申请
183****8115已经申请
187****5968已经申请
159****8233已经申请