公园悦府总建筑面积约60万平,作为北京全新轨道物业综合体,地铁上盖的建筑形态,未来将形成无缝连接的“一站式”生活体验,咫尺繁华国际生活圈,缔造区域新地标。同时,以“综合体”规划理念为标准,精心打造住宅、商业、园林、多阶段教育配套以及优质写字楼在内的多元化产品体系,并通过典雅精致的外立面设计,让人们切身感受社区内的人居品质。+ 项目毗邻大中关村商圈、上地商圈、TBD商圈、亚奥商圈、奥北商圈五大醇熟商圈,得天独厚的地理优势、丰富的配套资源及政策利好,凸显区域未来的无限发展潜力。其中,作为城市重点发展区域——中关村商圈,高端的商业定位,不仅营造了吃、购、娱、休闲一站式的生活体验,交通便利、精英荟萃、庞大客流量聚集等诸多优势,更让你随心掌控国际化氛围的都会生活圈。 多维度立体交通城市脉搏尽在掌握
基本信息
规划信息
配套信息
销售信息
优选顾问推荐
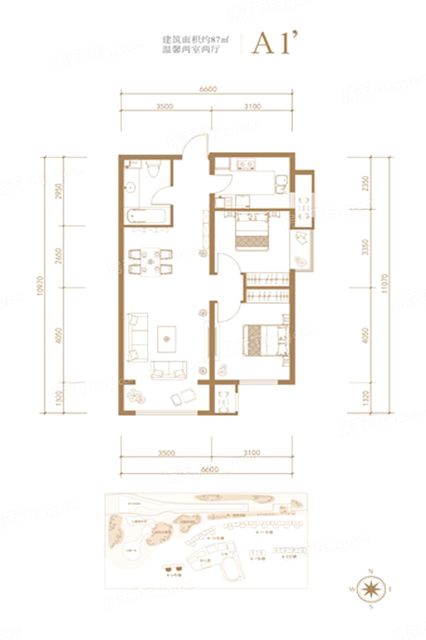
各个空间户型方正,方便室内家具布置;整个空间全明通透,采光良好,同时利于居住空间通风;整个户型空间布局合理,做到了干湿分离、动静分离,方便后期生活;客厅、卧室、卫生间和厨房等主要功能间的尺寸以及比例适中,有利于采光和通风,居住起来舒适、方便;
整体户型方正,活动区域开阔,居住舒适度高;全明通透户型,居住舒适度较高,整个空间采光充足,利于后期居住;整个户型空间布局合理,做到了干湿分离、动静分离,方便后期生活;客厅、卧室、卫生间和厨房等主要功能间的尺寸以及比例适中,有利于采光和通风,居住起来舒适、方便;

楼盘开盘、降价、优惠等信息,将会在第一时间短信通知您!
置业专家将在2小时内与您联系(8点-23点),请保持电话畅通。
请验证手机号验证码完成提交
置业专家将在2小时内与您联系(8点-23点),请保持电话畅通。
如当前手机号遗失,请联系0755-33526610进行人工修改
如当前手机号遗失,请联系0755-33526610进行人工修改
此楼盘如有优惠/变价通知,我们会及时通知您!
138****8965已经申请
137****8955已经申请
157****4365已经申请
183****8115已经申请
187****5968已经申请
159****8233已经申请