梵悦·108项目位于北京CBD,项目整体设计理念秉承CBD的国际审美,结合第三代幕墙工艺,选用双层中空三层夹胶LOW-E玻璃,风格流畅而统一,追求更纯粹的宁静。 产品打造方面,梵悦·108规划三种户型,涵盖惬意 与居住的时尚空间、纵观长安街的禅意空间,以及 与生活高度融合的主场空间。物业服务方面,梵悦·108与台湾怡盛物业合作运营提供高品质服务,台籍管家亲自服务。作为亚洲政要与明星的特约管家,怡盛物业将为梵悦·108业主提供定制服务静守私密
基本信息
规划信息
配套信息
销售信息
优选顾问推荐
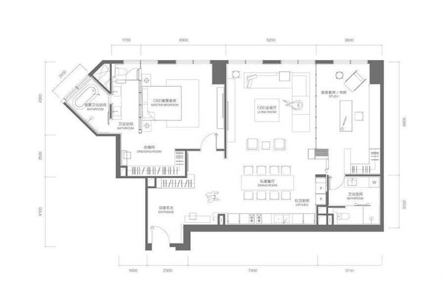
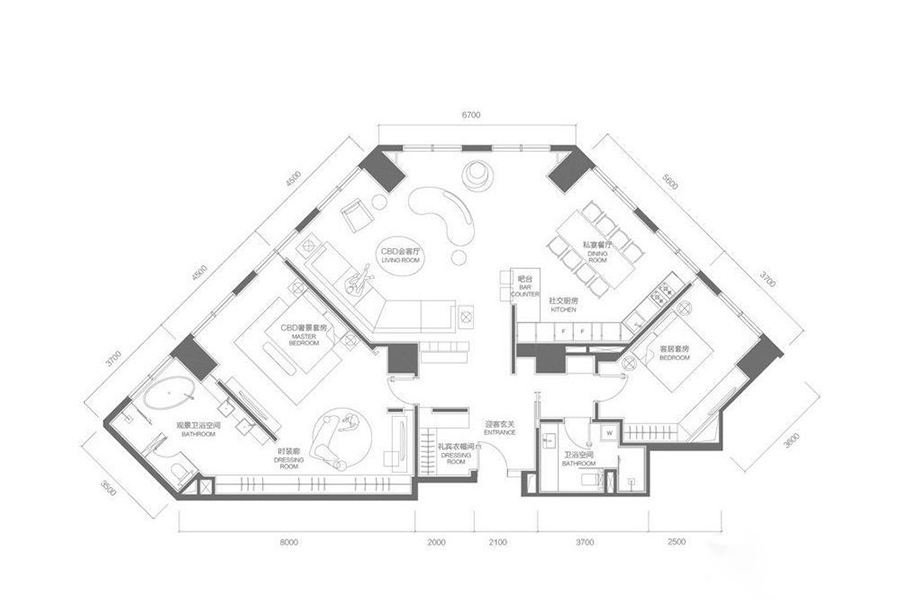
整体户型方正,活动区域开阔,居住舒适度高;有的卫生间无对外窗户,通风采光较差,湿气会加重,不利于身体健康。整个户型空间布局合理,做到了干湿分离、动静分离,方便后期生活;客厅、卧室、卫生间和厨房等主要功能间的尺寸以及比例适中,有利于采光和通风,居住起来舒适、方便;
主卧或客厅方正,其他空间不方正;非南向或东向,采光不足,西面下午为西晒,夏天时西晒阳光比较热,室内温度变高。卫生间没有对外窗户;整体空间布局合理,能够保证动静分离和居室通风,方便使用;客厅、卧室、卫生间和厨房等主要功能间的尺寸以及比例适中,有利于采光和通风,居住起来舒适、方便;日常使用基本满足。
整体户型方正,活动区域开阔,居住舒适度高;全明通透户型,居住舒适度较高,整个空间采光充足,利于后期居住;居室布局合理,通风良好,动静分离,兼顾到了卧室和卫生间的私密性;卧室厨卫等各个功能区的面积大小都比较合理,居住体验便利,整体舒适度高;

楼盘开盘、降价、优惠等信息,将会在第一时间短信通知您!
置业专家将在2小时内与您联系(8点-23点),请保持电话畅通。
请验证手机号验证码完成提交
置业专家将在2小时内与您联系(8点-23点),请保持电话畅通。
如当前手机号遗失,请联系0755-33526610进行人工修改
如当前手机号遗失,请联系0755-33526610进行人工修改
此楼盘如有优惠/变价通知,我们会及时通知您!
138****8965已经申请
137****8955已经申请
157****4365已经申请
183****8115已经申请
187****5968已经申请
159****8233已经申请