东方蓝海中心是工信部中小企业发展促进中心、昌平区政府和淮南矿业集团在未来科技城内打造近14万平米的中小企业服务示范园;涵盖商务办公、科技住宅、精品商业三大产品形态。 四至范围:东至昌平未来城科技城路,南至昌平未来城南区二路,西至现状水源九厂路,北至昌平未来城南区一路。
基本信息
规划信息
配套信息
销售信息
优选顾问推荐
暂无
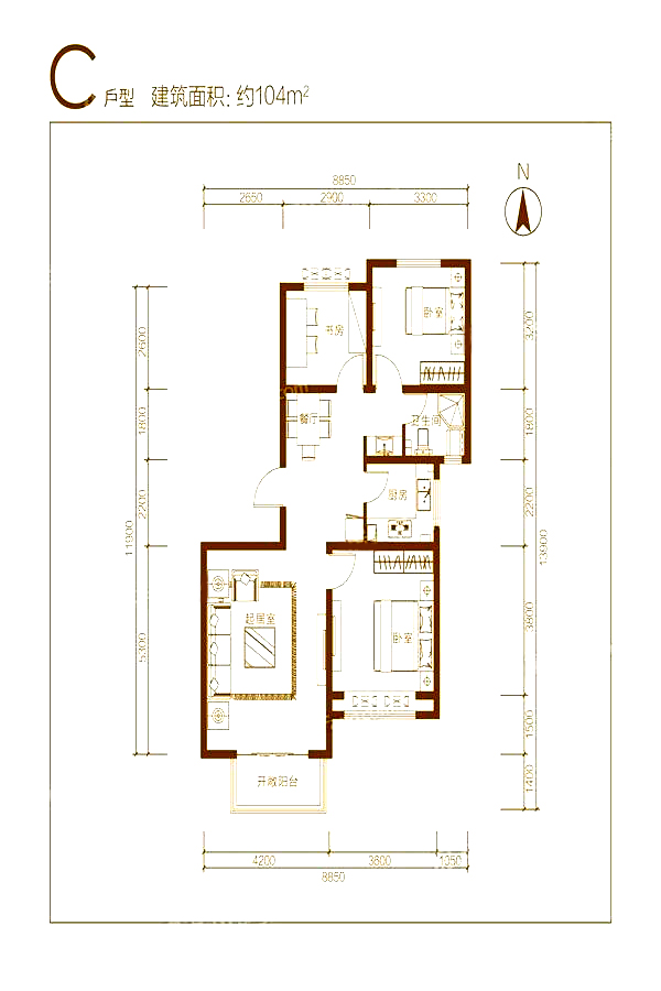
各个空间方正,后期 高。全明户型,各部分空间均有窗,可保证整体空间采光和通风,居住舒适度好;居室布局合理,通风良好,动静分离,兼顾到了卧室和卫生间的私密性;卧室厨卫等各个功能区的面积大小都比较合理,居住体验便利,整体舒适度高;公摊高于15%且低于25%,符合住宅公摊正常范围。
整体户型方正,活动区域开阔,居住舒适度高;南北不通透的户型,后期居住时常开门通风换气即可;厨房门朝向客厅,装修时要侧重考虑除油烟的措施;各个功能区的尺寸比例规范,布局合理,能很好地满足日常功能需求,整体空间开阔,采光充足,居住舒适度好;公摊高于15%且低于25%,符合住宅公摊正常范围。
整体户型方正,活动区域开阔,居住舒适度高;全明户型,各部分空间均有窗,可保证整体空间采光和通风,居住舒适度好;整个户型空间布局合理,做到了干湿分离、动静分离,方便后期生活;卧室厨卫等各个功能区的面积大小都比较合理,居住体验便利,整体舒适度高;公摊高于15%且低于25%,符合住宅公摊正常范围。
整体户型方正,活动区域开阔,居住舒适度高;全明通透户型,居住舒适度较高,整个空间采光充足,利于后期居住;居室布局合理,通风良好,动静分离,兼顾到了卧室和卫生间的私密性;卧室厨卫等各个功能区的面积大小都比较合理,居住体验便利,整体舒适度高;

楼盘开盘、降价、优惠等信息,将会在第一时间短信通知您!
置业专家将在2小时内与您联系(8点-23点),请保持电话畅通。
请验证手机号验证码完成提交
置业专家将在2小时内与您联系(8点-23点),请保持电话畅通。
如当前手机号遗失,请联系0755-33526610进行人工修改
如当前手机号遗失,请联系0755-33526610进行人工修改
此楼盘如有优惠/变价通知,我们会及时通知您!
138****8965已经申请
137****8955已经申请
157****4365已经申请
183****8115已经申请
187****5968已经申请
159****8233已经申请